INSPE Nice 06
Restructuration et extension de l’INSPE/ sis avenue Liégeard 06106 Nice.
Restructuration et extension/ SU 4 192 m²/ 7 970 000 €HT/ 2024/ Concours : projet classé deuxième.
Le site du projet est remarquable à plusieurs titres : sa taille, son relief imposant, sa position urbaine dominante, son inscription dans le périmètre classé de la Villa Arson, son ensemble patrimonial bâti de qualité et son jardin d’intérêt majeur.
Dans un souci de rationalité et afin de minimiser la taille des extensions, les volumes des bâtis existants ont été optimisés pour accueillir les surfaces du programme. Les extensions nécessaires ont ensuite été pensées dans le respect de la qualité architecturale et paysagère du site, tout en affirmant l’aspect contemporain des interventions. L’utilisation de matériaux adaptés à la problématique d’un chantier en site occupé et contraint, et dans une démarche construction durable, a guidé notre réflexion : « le bon matériau au bon endroit ».
Le bois s’est alors imposé à la fois pour ses qualités environnementales et la souplesse constructive de la filière sèche (préfabrication en atelier, montage rapide sur site, surcharges réduites) permettant de limiter les nuisances de chantier et de réduire les interventions sur place.
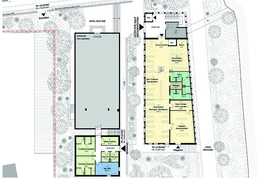
Ainsi, l’extension Nord du bâtiment principal, celle de la conciergerie, le centre de documentation et les vestiaires du gymnase sont constitués d’une superstructure bois avec planchers mixtes bois béton et d’un socle béton bas carbone.
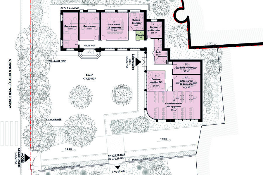
Le centre de documentation ouvert sur l’oliveraie se développe sur deux niveaux limitant son impact au sol. En proue du bâtiment, un belvédère prolongé d’une passerelle bois abrite un ascenseur et un escalier extérieur qui permettent d’atteindre le rez-de-jardin du bâtiment principal. Dans la continuité de la passerelle, une rampe bois épousant la restanque haute de l’oliveraie permet de rejoindre le parvis de l’Etablissement. Un jeu de coursives en balcon adossé au soubassement du bâtiment principal dessert d’un côté le hall et de l’autre la salle de restauration, offrant « un même accès pour tous ».
Maître d’ouvrage : Département des Alpes-Maritimes.
Leteissier-Corriol Architecture & Urbanisme mandataire.
PI CONSEIL structure-économie-fluides-thermique-VRD-CSSI/ SOWATT QEB/ Tempo Consulting OPC/ JPS amiante/ Ilulissa perspectiviste.











